- Главная
- Каркасные дома
- Дом шалаш 4 на 4
КД-142 | Дом шалаш 4 на 4
Стоимость строительства проекта КД-142
Толщина наружных стен каркаса:
Этот проект из бруса в теплый угол

Собственное
производство

Опытные
бригады

Гарантия
3 года на все

Работаем
во всех регионах

Опыт работы
10 лет

Доступные
цены
- Наружные стены
Толщиной 100 мм, 150 мм или 200 мм в зависимости от выбранной стоимости в блоке цен.
- Наружный каркас
Из обрезной доски 100х40 мм, 150х40 мм или 200х40 мм соответственно.
- Высоты этажей
1 этаж высотой 2,7 метра.
- Шаг стоек каркаса
Через 590 мм (под размер утеплителя).
- Лаги перекрытий
Для каркаса с толщиной стены 100 и 150 мм - обрезная доска 150х50 мм, для 200 мм - обрезная доска 200х50 мм.
- Шаг лаг
Через 590 мм (под размер утеплителя).
- Утепление наружных стен, пола и потолка
Плитный, толщина утеплителя согласно толщине каркаса.
- Внутренние перегородки
Из обрезной доски 100х40 мм через 590 мм.
- Внешняя отделка
Имитация бруса 1 сорт (A-B) толщиной 20 мм.
- Внутренняя отделка
Имитация бруса 1 сорт (A-B) толщиной 16 мм (стены и потолок).
- Обвязка основания
Брус 150х150 мм.
- Черновой пол
Обрезная доска 150х25.
- Чистовой пол
Шпунтованная доска пола 36х135 мм.
- Стропильная система
Для каркаса с толщиной стены 100 мм - доска 100х40 мм, для 150 мм - доска 150х40 мм и для 200 мм - доска 200х40 мм.
- Обрешетка крыши
Обрезная доска 150х25 мм.
- Покрытие кровли
Металлопрофиль или металлочерепица (графит / коричневый / зелёный / красный / вишневый / и т.п).
- Входная дверь
Металлическая, производство Россия.
- Окна
Пластиковые окна трёхкамерные поворотно-откидные.
- Антисептирование
Обработка обвязки и лаг пола 1 этажа.
- Парогидроизоляция
С внешней и внутренней стороны утеплителя.
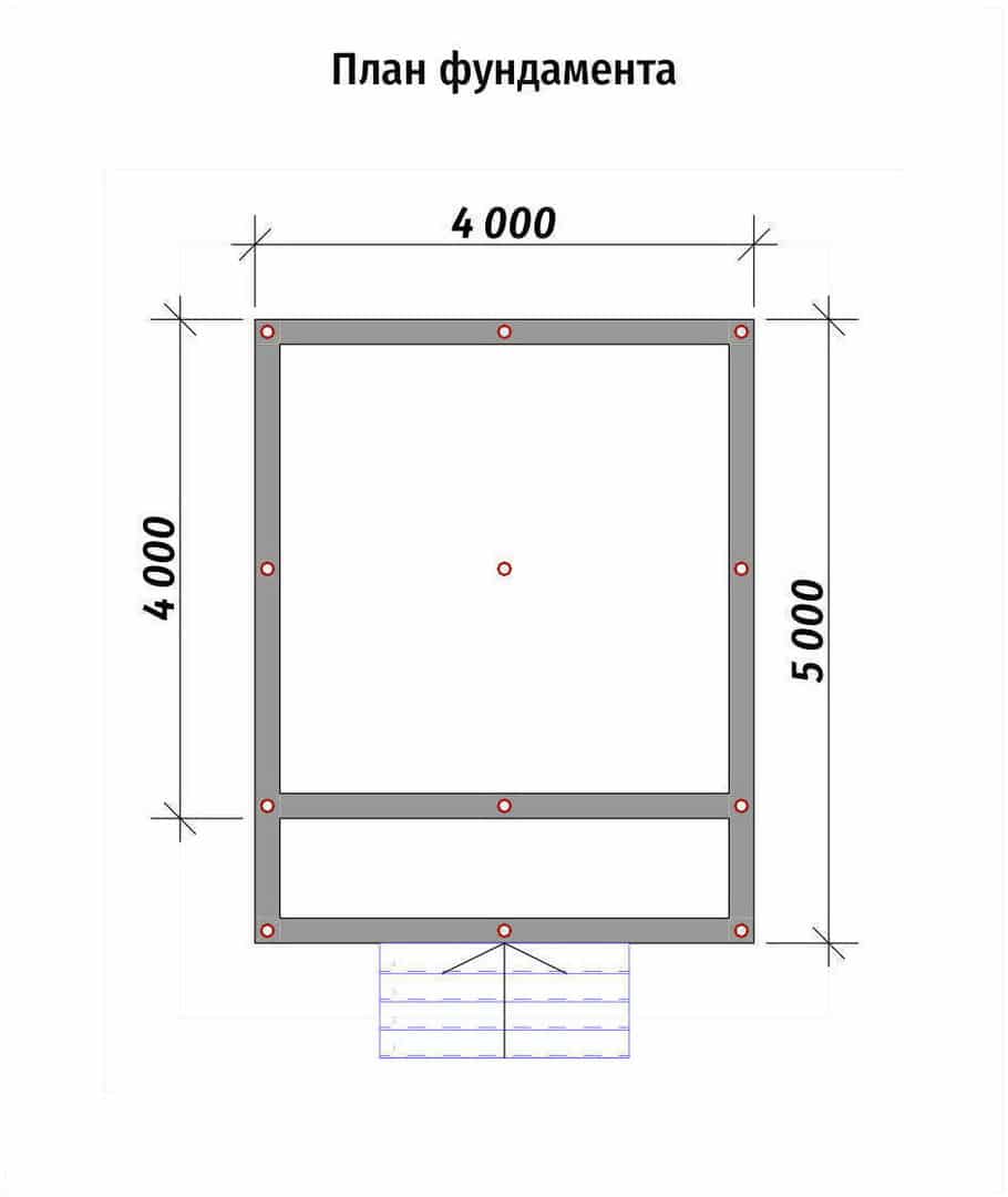
- Фундамент
В базовую стоимость не входит, рассчитывается отдельно. Возможные варианты: свайно-винтовой, Ж\Б сваи, ленточный или монолитная плита. Выбрать вид фундамента и цену можно во вкладке "Фундамент".
- Ленточный
Цена: По запросуГлубина копки траншеи 0,7 метра, засыпается песчаная подушка на 0,2 метра, высота цоколя 0,5 метра (общая высота из бетона 1 м, ширина 0,4 м). Армирование - 3 ряда в 2 стержня, диаметр арматуры 12 мм, бетон марки М300.
- Свайно-винтовой
Цена: По запросуСваи располаются друг от друга на растояние не более 2 метров. Длина сваи - 2,5 м, диаметр сваи - 108 мм, диаметр лопасти - 300 мм, толщина лопасти - 5 мм, толщина сваи - 5 мм, металлический оголовок - 150х150 или 200х200 мм
- Железобетонные сваи
Цена: По запросуДлина Ж/Б сваи 3 м, сечение 150х150 или 200х200 мм. Бетон М400 на гравийном щебне. Армирование АIII 10, Вр 1 4.
- Другие фундаменты
Цена: по запросу.Возможно строительство плитного, свайно-ростверкого, столбчатого, буронабивного фундамента или сборной ленты.
- Металлочерепица
Цена: 0 руб.Входит в базовую комплектацию. Металлочерепица фирмы "Северсталь" толщиной 0,45 мм.
- Ондулин
Цена: По запросуЦена включает в себя материал, комплектующие и работу по монтажу. Цвет на выбор клиента. Удешевит стоимость дома.
- Мягкая кровля
Цена: По запросуЦена включает в себя материал, комплектующие и работу по монтажу. Цвет на выбор клиента.
- Генератор
Бесплатная аренда.Предоставляется бесплатно, если на участке отсутствует электричество. Топливо оплачивается заказчиком.
- Строительная бытовка
Цена: 70000 руб.Бытовка 2,5х3,7 каркасная (каркас из обрезного бруска 50х100, обшитый снаружи ОСБ 9 мм). В дальнейшем может быть использована под хозблок.
- Утепление перегородок
Цена: 300 руб/м2.Утепление и звукоизоляция межкомнатных перегородок (внутренних). Рработа + материал.
- Лестница
Цена: По запросу.Монтаж постоянной лестницы любой сложности и материала на 2-ой этаж за место временной.
- Покраска (антисептирование)
Цена: 250 руб/м2.Внутренние и внешние лакокрасочные работы, цена за работу в 2 слоя.
- Снегозадержатели
Цена: 1800 руб/м.п.Монтаж снегоудержателей, цена за работу и материал
- Водосточная система
Цена: 1750 руб/м.п.Пластиковая водосточная система, цена за работу и материал.
- Внутренние двери
Цена: 4000 руб/шт.Цена указана за установку любой двери.

Похожие проекты
Этапы работы

Звонок/заявка с сайта для консультации

Расчёт и согласование проекта

Заключение договора по электронной почте

Доставка стройматериалов

Строительство объекта

Сдача объекта и оплата 30%
Расчёт доставки
Расстояние:
0 км Скидка:
1 500 р. Стоимость:
0 руб. Описание проекта КД-142
Дом шалаш 4 на 4 с общей площадью 20 кв.м и габаритными размерами 4х4 метров, готов к строительству под ключ за 1404000 рублей с толщиной каркаса 100 мм, 150 мм за 1450000 рублей и за 1614000 рублей за толщину стен и утеплителя в 200 мм. Каркасно-щитовой дом 4х4 по проекту КД-142 возводится на ленточном мелкозаглубленном фундаменте стоимостью рублей, свайном фундаменте стоимостью , железобетонных сваях за рублей или монолитной плите. Крыша в базовой комплектации покрыта металлочерепицей, можно заменить на мягкую кровлю или ондулин.
Если у вас остались вопросы по проекту КД-142 или хотите изменить планировку каркасника, уменьшить или увеличить размер 4х4, то позвоните или напишите на почту info@prodrev.ru
Относиться к следующим разделам:








