- Главная
- Дома из бруса
- Одноэтажный дом 9 на 14 из бруса «Гостевой»
ДБ-334 | Одноэтажный дом 9 на 14 из бруса «Гостевой»
Стоимость строительства под усадку
Брус естественной влажности:

Собственное
производство

Опытные
бригады

Гарантия
3 года на все

Работаем
во всех регионах

Опыт работы
10 лет

Доступные
цены
- Наружные стены
Из обычного или из профилированного бруса. Угловые и продольные соединения в теплый угол, между венцами укладывается джут и скрепляются деревянными нагелями. Так же возможно возведение из сухого бруса камерной сушки.
- Перегородки
Из обычного или профилированного бруса толщиной 100 мм.
- Высота 1 этажа
2,7 метра (±50мм) в чистоте (19 венцов из обычного бруса, 21 венец из профилированного бруса).
- Фронтоны крыши
Если дом из обычного бруса, то доска 25х150 мм, а если из профилированного, то имитация бруса.
- Половые и потолочные балки
Брус 100х150 мм через 590 мм (под размер утеплителя).
- Стропильная система
Доска 50х150 мм через 590 мм (под размер утеплителя).
- Обрешетка крыши
Доска 25х150 мм.
- Кровля
Временная из рубероида на время усадки, можно сразу заказать постоянную, выбрать вид и узнать цену во вкладке "Кровля".
- Антисептирование
Нижний венец и половые лаги.
- Гидроизоляция
Укладка рубероида по фундаменту.
В базовую комплектацию не входит из-за невозможности реализовать сразу (необходимо время на усадку дома от 6 до 12 месяцев). Рассчитывается индивидуально под клиента с подбором необходимых материалов.
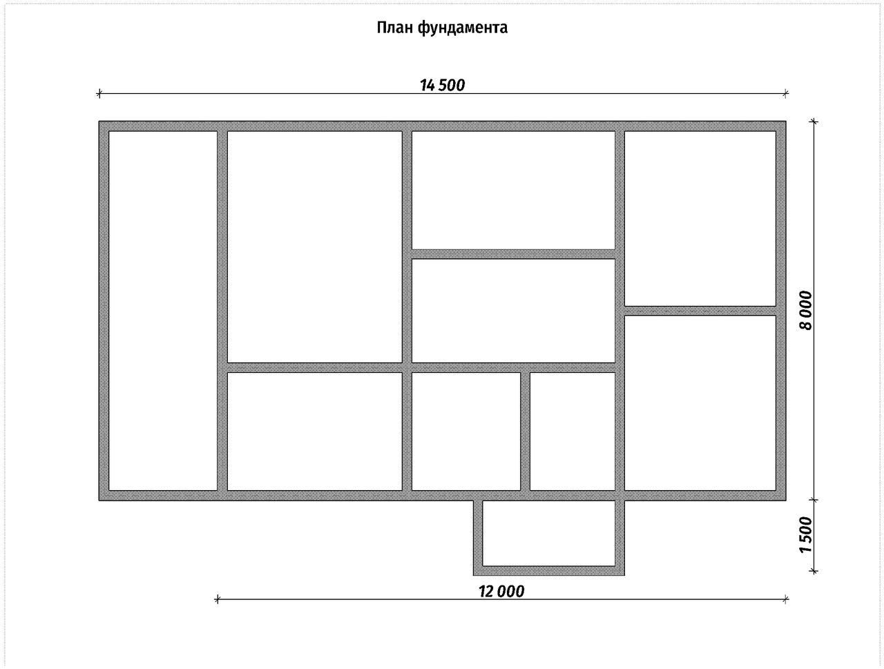
- Фундамент
В базовую стоимость не входит, рассчитывается отдельно. Возможные варианты: свайно-винтовой, Ж\Б сваи, ленточный или монолитная плита. Выбрать вид фундамента и цену можно во вкладке "Фундамент".
- Другое
Уборка строительного мусора в аккуратные кучи на участке. Рекомендации заказчику о дальнейшем уходе и эксплуатации дома.
Вернуться в каталог: проекты и цены домов из бруса.
- Ленточный
Цена: По запросу
Глубина копки траншеи 0,7 метра, засыпается песчаная подушка на 0,2 метра, высота цоколя 0,5 метра (общая высота из бетона 1 м, ширина 0,4 м). Армирование - 3 ряда в 2 стержня, диаметр арматуры 12 мм, бетон марки М300.
- Свайно-винтовой
Цена: По запросу
Сваи располаются друг от друга на растояние не более 2 метров. Длина сваи - 2,5 м, диаметр сваи - 108 мм, диаметр лопасти - 300 мм, толщина лопасти - 5 мм, толщина сваи - 5 мм, металлический оголовок - 150х150 или 200х200 мм
- Железобетонные сваи
Цена: По запросу
Длина Ж/Б сваи 3 м, сечение 150х150 или 200х200 мм. Бетон М400 на гравийном щебне. Армирование АIII 10, Вр 1 4.
- Другие фундаменты
Цена: по запросу.
Возможно строительство плитного, свайно-ростверкого, столбчатого, буронабивного фундамента или сборной ленты. Узнайте здесь: какой фундамент лучше выбрать.
- Рубероид
Цена: 0 руб.
Входит в базовую комплектацию и является временной кровлей на время усадки сруба дома.
- Ондулин
Цена: По запросу
Цена включает в себя материал, комплектующие и работу по монтажу. Цвет на выбор клиента.
- Металлочерепица
Цена: По запросу
Цена включает в себя материал, комплектующие и работу по монтажу. Цвет на выбор клиента. Металлочерепица фирмы "Северсталь" толщиной 0,45 мм.
- Мягкая кровля
Цена: По запросу
Цена включает в себя материал, комплектующие и работу по монтажу. Цвет на выбор клиента.
- Другие работы по кровле
Одноэтажный дом 9 на 14 из бруса «Гостевой» конструктивно выглядит примерно так:
Узнайте больше о технологии строительства домов из бруса.
Строительство срубов из бруса – это широко используемая технология, которая дает возможность создавать прочные, уютные и долговечные дома. Давайте рассмотрим основные этапы и особенности строительства объектов из этого пиломатериала.
1. Выбор бруса
В первую очередь, нужно определиться с видом бруса, который будет использоваться для строительства дома. Существует несколько видов бруса: обычный, профилированный, клееный брус или другие более редкие разновидности. Каждый тип имеет свои достоинства и минусы, поэтому выбор зависит от предпочтений заказчика и его возможностей.
2. Фундамент
После выбора типа материала происходит процесс строительства. 1-м этапом является возведение фундамента. Для брусового дома можно использовать ленточный, свайный или плитный фундамент. Важно точно определить нагрузку и подобрать подходящий вид основания с учетом особенностей грунта и рельефа участка.
3. Сборка стен
Далее начинается процесс возведения стен. Сначала монтируется первый венец, затем все последующие. Между венцами прокладывается утеплитель и слой гидроизоляции. Внимание уделяется угловым соединениям и стыкам между брусьев.
4. Монтаж крыши
После сборки стен, монтируется крыша. Она может быть односкатной, двускатной или многоскатной. Выбор типа крыши зависит от дизайна дома и предпочтений клиента. При монтаже кровли обязательно учитывается угол наклона, чтобы гарантировать хороший отвод осадков.
Популярные каталоги:
- Генератор
Бесплатная аренда.Предоставляется бесплатно, если на участке отсутствует электричество. Топливо оплачивается заказчиком.
- Строительная бытовка
Цена: 70000 руб.
Бытовка 2,5х3,7 каркасная (каркас из обрезного бруска 50х100, обшитый снаружи ОСБ 9 мм). В дальнейшем может быть использована под хозблок.
- Обвязочный венец
Цена: По запросу
Обвязка по фундаменту из нестроганного бруса 150х200 естественной влажности (обязательно необходим только при свайно-винтовом и Ж\Б фундаменте).
- Черновой пол
Цена: По запросу
Монтаж чернового пола на всех этажах по балкам из досок 25х150 или 25х100 мм.
- Покраска
Цена: 250 руб/м2.
Антисептирование, внутренние и внешние лакокрасочные работы. Цена указана за работу.
- Снегозадержатели
Цена: 1800 руб/м.п.
Монтаж снегоудержателей, цена за работу и материал.
- Водосточная система
Цена: 1750 руб/м.п.
Пластиковая водосточная система, цена за работу и материал.
- Калькулятор
Воспользуйтесь услугой индивидуального расчета стоимости проекта.

Похожие проекты
Этапы работы

Звонок/заявка с сайта для консультации

Расчёт и согласование проекта

Заключение договора по электронной почте

Доставка стройматериалов

Строительство объекта

Сдача объекта и оплата 30%
Расчёт доставки
Расстояние:
0 км Скидка:
1 500 р. Стоимость:
0 руб. Описание проекта ДБ-334
Одноэтажный дом 9 на 14 из бруса «Гостевой» с общей площадью 81 кв.м, готов к строительству под усадку за 1356000 рублей из обрезного бруса сечением 150х150 мм. Возведение стен толщиной 200х200 мм обойдется в ₽ или за ₽ из профилированного бруса сечением 140х145 мм. Стоимость дома ДБ-334 из сухого пиломатериала в среднем дороже на 15% и цена составит руб. Брусовой сруб, устанавливается на ленточном мелкозаглубленном фундаменте, стоимостью ₽, свайном фундаменте стоимостью ₽ или монолитной плите.
Если у вас остались вопросы по проекту ДБ-334 или хотите изменить планировку, уменьшить или увеличить размер, или построить дом для построянного проживания, то позвоните или напишите на почту info@prodrev.ru.
Проект относиться к категориям:












